Convenzione “Design District - Drop city” - Magazzini Raccordati - via Sammartini
La convenzione Magazzini Raccordati per il Design District si inserisce in un più ampio quadro di intese e accordi tra RFI, GS Retail e il Comune di Milano per la riqualificazione dell’area limitrofa alla Stazione centrale. Il percorso è iniziato nel luglio 2016 con la stipula della convenzione tra RFI, FS Sistemi Urbani S.r.l e GS Retail Spa (GSR) che regolava la concessione a GS Retail della gestione, dell’utilizzo e dello sfruttamento economico delle parti non più strumentali dei complessi immobiliari delle principali stazioni ferroviarie italiane. Tra gli obiettivi strategici di GSR, era compresa anche la riqualificazione della Stazione Centrale di Milano con lo scopo di migliorarne i servizi, elevare l’offerta ed aumentare il confort generale per i visitatori mediante la valorizzazione del patrimonio esistente.
La convenzione riguardava, tra l’altro, la gestione, l’utilizzo e lo sfruttamento economico degli spazi della stazione ferroviaria ricompresi negli edifici denominati 1, 2, 3,5, 6 e 7 e quelli contenuti all’interno del rilevato ferroviario della stazione lungo le vie Ferranti Aporti e G.B. Sammartini, denominati “Magazzini Raccordati”, in stato di abbandono da oltre vent’anni. Accanto agli obiettivi di riqualificazione interna degli edifici della stazione, il Comune di Milano e le altre Pubbliche Amministrazioni insieme a GS Retail hanno sempre prestato particolare attenzione anche alla riqualificazione delle aree limitrofe alla stessa e nello specifico l’Amministrazione, nell’intento di rendere l’area più accogliente e sicura, ha più volte evidenziato la necessità di procedere ad una riqualificazione di piazza Luigi di Savoia e dell’assetto viabilistico circostante, mediante interventi di decoro urbano, di recupero e riuso degli spazi pubblici con finalità di interesse generale, volti all’abbellimento e alla valorizzazione dell’intero ambito. Inoltre, in considerazione delle caratteristiche di elevata accessibilità dell’ambito di Stazione, l’Amministrazione Comunale ha manifestato l’esigenza di disporre di spazi da utilizzare, anche occasionalmente, per attività culturali, ricreative e/o formative.
GS Retail Spa, per il raggiungimento degli obiettivi sopra descritti, ha sviluppato un concept architettonico che definisse gli elementi principali del progetto di riqualificazione della stazione e in accordo con il Comune di Milano e la Sovrintendenza Archeologia Belle Arti e Paesaggio Milano, ha analizzato, progettato e avviato una prima serie di interventi sugli Edifici 1, e 3 della Stazione che comprendevano anche una prima riqualificazione delle due piazze adiacenti alla stazione stessa (P.zza IV Novembre e P.zza Luigi di Savoia).
In continuità con questo percorso, nel 2019 è stata sottoscritta una convenzione tra il Comune di Milano, GS Retail e Mercato Centrale Milano S.r.l, per la rigenerazione dell’area urbana della stazione di Milano Centrale che conteneva e regolava sia l’intervento di valorizzazione dell’edificio che si affaccia sulla Piazza IV Novembre (c.d. Edificio 2) con la previsione dell’apertura del format di ristorazione “Mercato Centrale”, che la riqualificazione della piazza L. di Savoia e la realizzazione del Giardino Unicef dei bambini e bambine di tutto il mondo.
Nel frattempo, nel febbraio 2020, è diventato efficace il nuovo PGT2030 che disciplina gli ambiti a ridosso della stazione come “Ambiti di Rigenerazione – Nodi di Interscambio”, ai sensi dall’art. 15 delle Norme di Attuazione del Piano delle Regole, confermando e sostenendo il processo di riqualificazione in atto.
La convenzione, stipulata nel maggio 2022, “Design District Magazzini Raccordati” tra il Comune di Milano, la Società Grandi Stazioni Retail S.p.A. e la Società Supermoon s.r.l. ha come oggetto lo sviluppo di un distretto dedicato a servizi innovativi e ad alto valore tecnologico in ambito di Architettura e Design con l’intento di porsi quale azione e condizione permanente di riqualificazione di quest’area. In particolare, la costituzione di un distretto di architettura nasce dalla volontà di mettere a sistema il potenziale delle persone per un modello di quartiere inedito: un luogo di lavoro dove svolgere la professione, esercitare attività di ricerca, sperimentare nuovi materiali e tecnologie, approfondire la didattica e potenziare il dibattito sull’architettura contemporanea. I Magazzini Raccordati esprimono il contesto ideale per la realizzazione di un distretto di professionisti interconnesso e in diretta relazione con la strada e le energie del quartiere. La concentrazione di risorse, attrezzature e servizi inerenti a professionalità affini (architettura, design) costituirà un epicentro in grado di produrre un costante scambio di informazione e know-how di alto valore professionale.
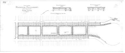
Il distretto di architettura è pensato lungo via Sammartini, in posizione baricentrica rispetto al Piazzale Duca d’Aosta e la Martesana, coinvolgendo una superficie complessiva di circa 10.000 metri quadrati.
Il distretto di via Sammartini coniuga il programma di un co-working specializzato per l’architettura con quello di laboratori di modellistica e di prototipi, insieme a laboratori, spazi espositivi e servizi in grado di catalizzare l’attenzione durante eventi temporanei (es. Design Week) ma anche lungo l’intero arco dell'anno. Il programma funzionale prevede anche l’insediamento di una biblioteca di archivio e consultazione di materiali ed editoria specializzata, accessibile anche al quartiere. Sono state previste anche attività secondarie di servizio, accoglienza e di ristorazione, direttamente connesse con le attività di ricerca e produttive.
In estrema sintesi l’intervento di riqualificazione dei Magazzini Raccordati quale Distretto di Architettura prevede l’insediamento all’interno degli stessi di funzioni urbane e di servizi da catalogo, oltre l’opera di riqualificazione di parte di via Sammartini e si costituisce come un’operazione unitaria di rigenerazione territoriale, ambientale, sociale ed economica.
Il progetto urbanistico-edilizio è volto al recupero e alla riqualificazione di una parte dei Magazzini Raccordati, per una superficie di circa 9.149 mq, per insediare servizi innovativi e ad alto valore tecnologico riconducibili agli ambiti dell’architettura e del design.
L’intervento di rigenerazione si attua mediante opere di risanamento conservativo volte all’insediamento di un insieme di funzioni urbane e destinazioni aventi la seguente articolazione:
- terziario con spazi di co-working per una Superficie Lorda pari a mq. 3.807;
- commerciale con spazi per la somministrazione alimenti e bevande per una Superficie Lorda pari a mq. 1.388.
Per una quantità massima di SL pari a mq. 5.195. La SL insediata per funzioni urbane è riconosciuta ai sensi dell’art. 7 comma 5 del PdR.
L’intervento prevede inoltre l’insediamento di servizi da catalogo - Servizi di Interesse Pubblico e Generale ai sensi dell’articolo 9, comma 10, della Legge Regionale n.12/2005 e s.m.i.- riconducibili alla categoria di servizi “Innovazione Economica” ai sensi del “Catalogo dei Servizi Pubblici e di Interesse Pubblico e Generale” del Piano dei Servizi del Piano di Governo del Territorio, consistenti in “Laboratori e Spazi per l’innovazione "e più precisamente:
- FabLab - laboratori e servizi di fabbricazione digitale per una SL convenzionale pari a mq. 2.748 di;
- Biblioteca dei materiali per una SL convenzionale pari a mq. 669;
- Spazi didattico espositivi per una SL convenzionale pari a mq. 1.292.
Per una quantità massima di SL convenzionale pari a mq. 4.709 Il convenzionamento di Servizi di Interesse Pubblico e Generale da Catalogo è disciplinato dall’art. 4 del Piano dei Servizi.
Le dotazioni territoriali dovute ai sensi dell’art. 11.2.a (direzionale/servizi privati/commercio) delle Norme di Attuazione del Piano dei Servizi ammontano a complessivi mq. 3.807. che vengono totalmente monetizzati per un valore complessivo pari a euro 1.131.326,19.
In ragione dell’interesse pubblico di rigenerazione urbana dell’intero quartiere queste risorse verranno investite, in luogo del versamento della monetizzazione, in un intervento di riqualificazione di via Sammartini, lungo la sezione stradale fronteggiante la proposta, realizzato direttamente a cura dei proponenti attraverso la modalità dello scomputo, ai sensi dell’art. 15.7 del Piano delle Regole, secondo le indicazioni impartite dalle Aree competenti.
Il progetto preliminare della riqualificazione di via Sammartini è stato oggetto di valutazione congiunta da parte della Direzione Rigenerazione Urbana e della Direzione Mobilità, che hanno, a tal fine, predisposto un Tavolo Tecnico per la redazione di uno studio per la valutazione dello scenario più idoneo alla trasformazione di via Sammartini e Ferrante Aporti, considerati come assi a vocazione pedonale e ciclabile, nell’ottica di una riqualificazione ambientale possibile attraverso la “depavimentazione” e l’incremento della componente vegetale.
- Istruttoria in corso per proposta di modifiche attuative della convenzione sottoscritta
Argomenti:
Aggiornato il: 13/01/2025












